BELLEVILLE, 4
LOGEMENTS
Paris, France
Programme : immeuble de 4 appartements et commerce
Maîtrise d’ouvrage : SCI 333
Mission : Complète
Calendrier : livré en mars 2016
Surface : 333 m² (surface de plancher)
Certification : RT 2005 + RT existant "élément par élément"
Photos : David Foessel
Paris, France
Programme : immeuble de 4 appartements et commerce
Maîtrise d’ouvrage : SCI 333
Mission : Complète
Calendrier : livré en mars 2016
Surface : 333 m² (surface de plancher)
Certification : RT 2005 + RT existant "élément par élément"
Photos : David Foessel
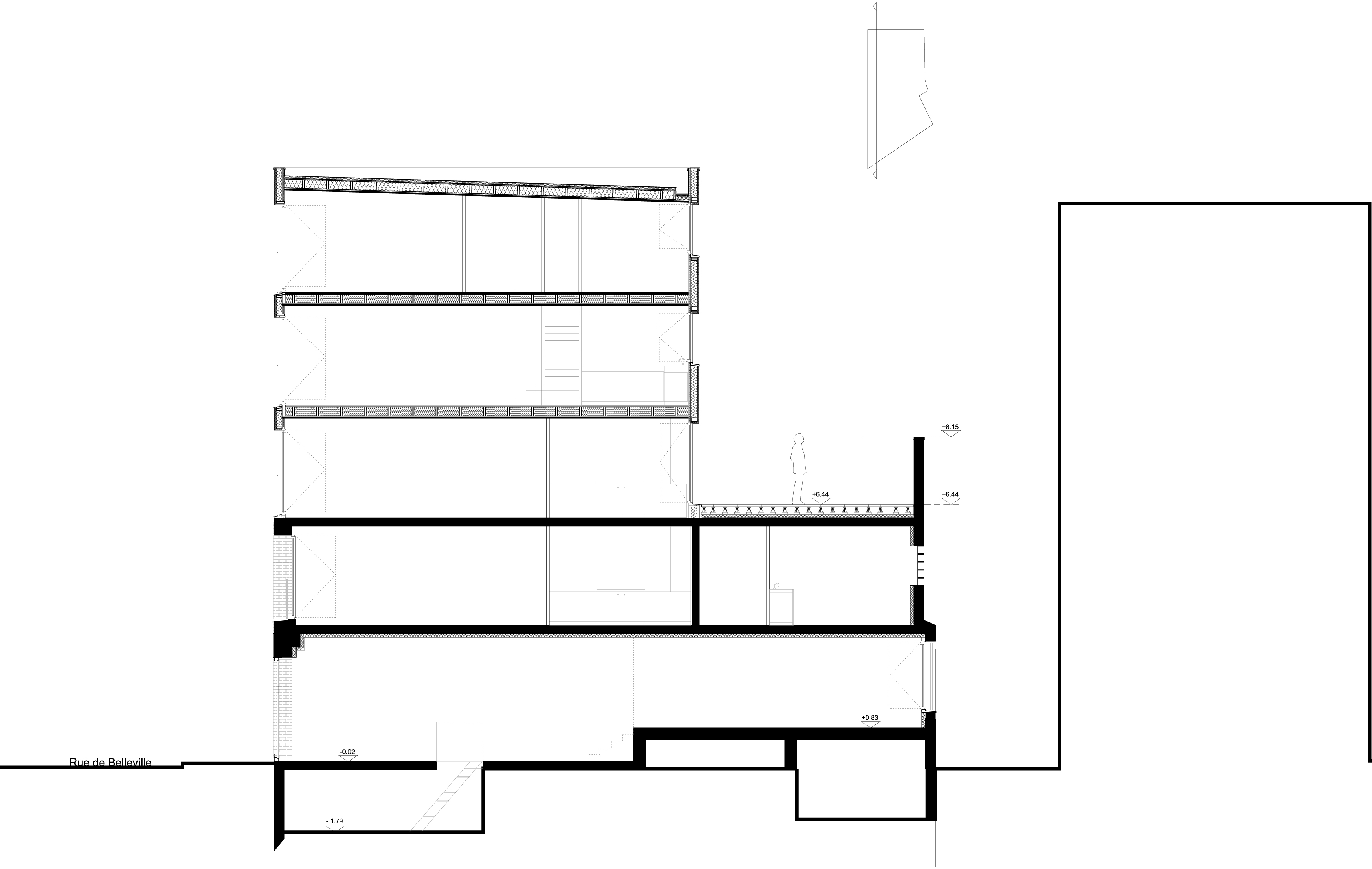
Construction of a five-storey building with four apartments and a commercial space, located in a dense urban context. The first two levels are existing and reinforced with concrete, whereas the added three levels are built in a light wooden structure. This structural choice allowed to facilitate supplies to the site and optimized the construction time. With regular generously proportioned windows, the facade is a reinterpretation of the classic Parisian typology, adapted to current uses.
nomination

finaliste
![]()















