DAR EL FARHA
Marsa, Tunisie
Programme : Maison individuelle
en collaboration avec ArkitektAAl, agence d'architecture et de management durable de l'habitat, AMO HQE certifié par Cerway
Maîtrise d’ouvrage : Privée
Mission : Conception et suivi architectural
Calendrier : chantier en cours
Surface : 210 m²
Marsa, Tunisie
Programme : Maison individuelle
en collaboration avec ArkitektAAl, agence d'architecture et de management durable de l'habitat, AMO HQE certifié par Cerway
Maîtrise d’ouvrage : Privée
Mission : Conception et suivi architectural
Calendrier : chantier en cours
Surface : 210 m²
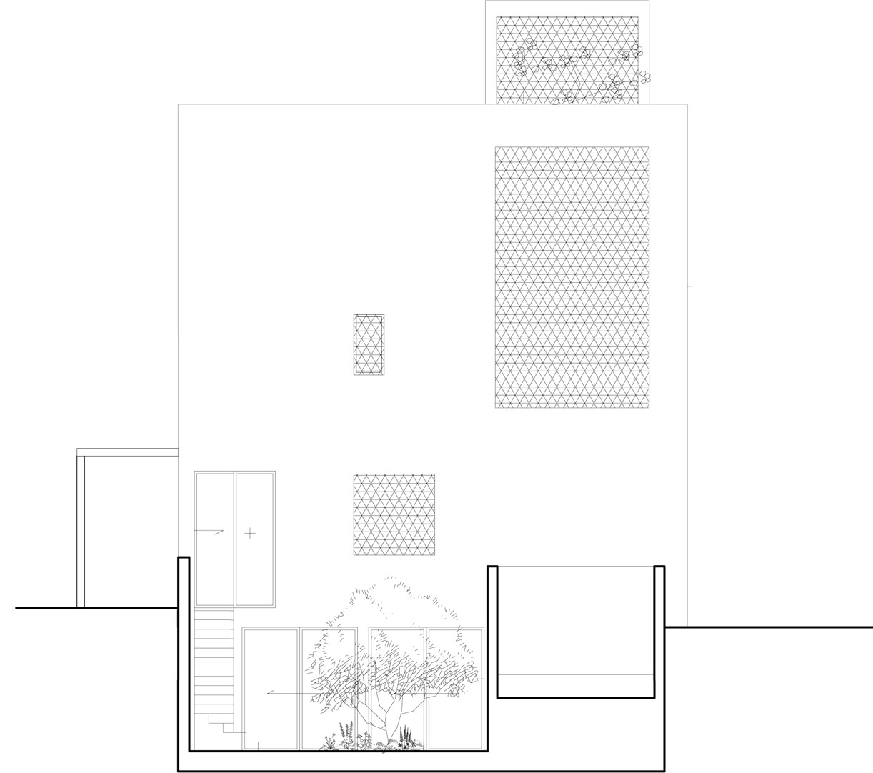
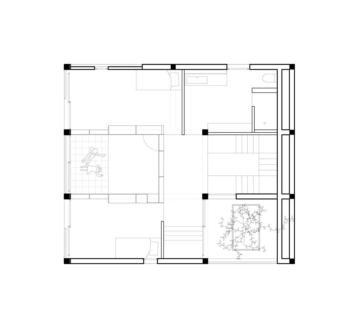
Dar El Farha est une maison individuelle pour un couple avec enfants située dans un lotissement résidentiel de la banlieue nord de Tunis.
Le volume est volontairement compact pour libérer de l’espace au sol pour un grand jardin. La maison s’organise sur trois niveaux autour d’un escalier continu. Le rez-de-chaussée est constitué d’une unique grande pièce à vivre avec une cuisine ouverte. Le premier étage est dédié aux enfants.
Un patio en double hauteur avec un grand arbre et des plantes amène un peu de nature et de fraicheur à l’intérieur de la maison jusqu’au deuxième étage consacré aux parents. Le rez-de-chaussée est ouvert sur le jardin tandis que les étages sont protégés du soleil de par un système de claustras. Ces éléments préfabriqués en brique qui viennent filtrer la lumière sont fabriqués localement comme le reste des matériaux de finition utilisés.
La ventilation se fait de manière naturelle par un vide qui prend l’air frais du sous-sol pour ventiler le reste de la maison.














