Arceuil, France
Programme : Création d’un micro-collectif sur la parcelle d’une maison individuelle
Maîtrise d’ouvrage : Privé
Mission : complète
Calendrier : Etudes en cours
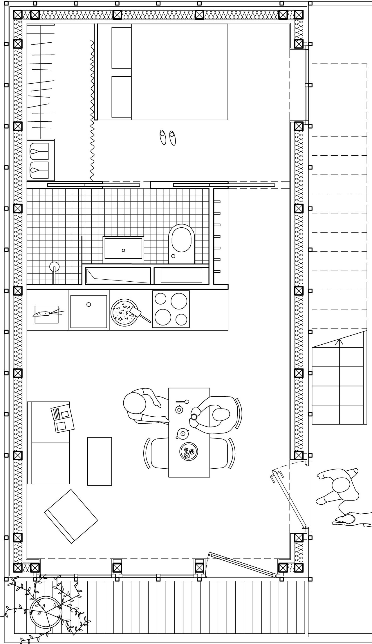
Surface : 63 m² surélévation, 61 m² réhabilitation
La maison se situe dans une parcelle d’angle. Elle est tout à fait typique du paysage pavillonnaire environnant, des façades enduites, avec une toiture de tuiles en double pente, un petit jardin, et au fond de celui-ci un garage en béton et parpaing.
Le jardin de la maison rappelle quant à lui, la forme d’un patio délimité à la fois par la maison principale, une dépendance extérieure, le garage et enfin les maisons voisines de l’autre côté de l’étroite rue, dont la proximité semble finir d’encadrer ce patio. Le long du mur de clôture, un beau rosier, fierté des propriétaires, vient donner de la poésie à l’ensemble.
L’étroitesse du garage, conjuguée à la possibilité réglementaire de monter jusqu’à 15m préfigurent de fait une forme architecturale très spécifique. Une silhouette verticale qui va en s’affinant, rappelant une pièce montée qui se distingue dans un environnement pavillonnaire globalement homogène.
Deux petits logements sont aménagés en surélévation du garage existant. Les circulations sont ramenées à l’extérieur afin de maximiser l’espace à l’intérieur des appartements. De légers décrochés et quelques reculs viennent sculpter le volume pour minimiser son impact sur le voisinage et génèrent, au passage, des terrasses côté rue dans le prolongement des nouveaux logements. .
En contre point parfait de cette nouvelle silhouette, le jardin-patio devient l’espace central ordonnant la maison existante, les nouveaux services partagés du rez-de-chaussée et les deux logements en surélévation. Les usages collectifs s’y déploient alors à loisir. Le thé est partagé à l’ombre du rosier en attendant son linge, le barbecue est sorti aux beaux jours, le propriétaire orfèvre de son état transmet sa passion dans l’atelier attenant au jardin.











