SLO 2 - Hostel
Nice, France
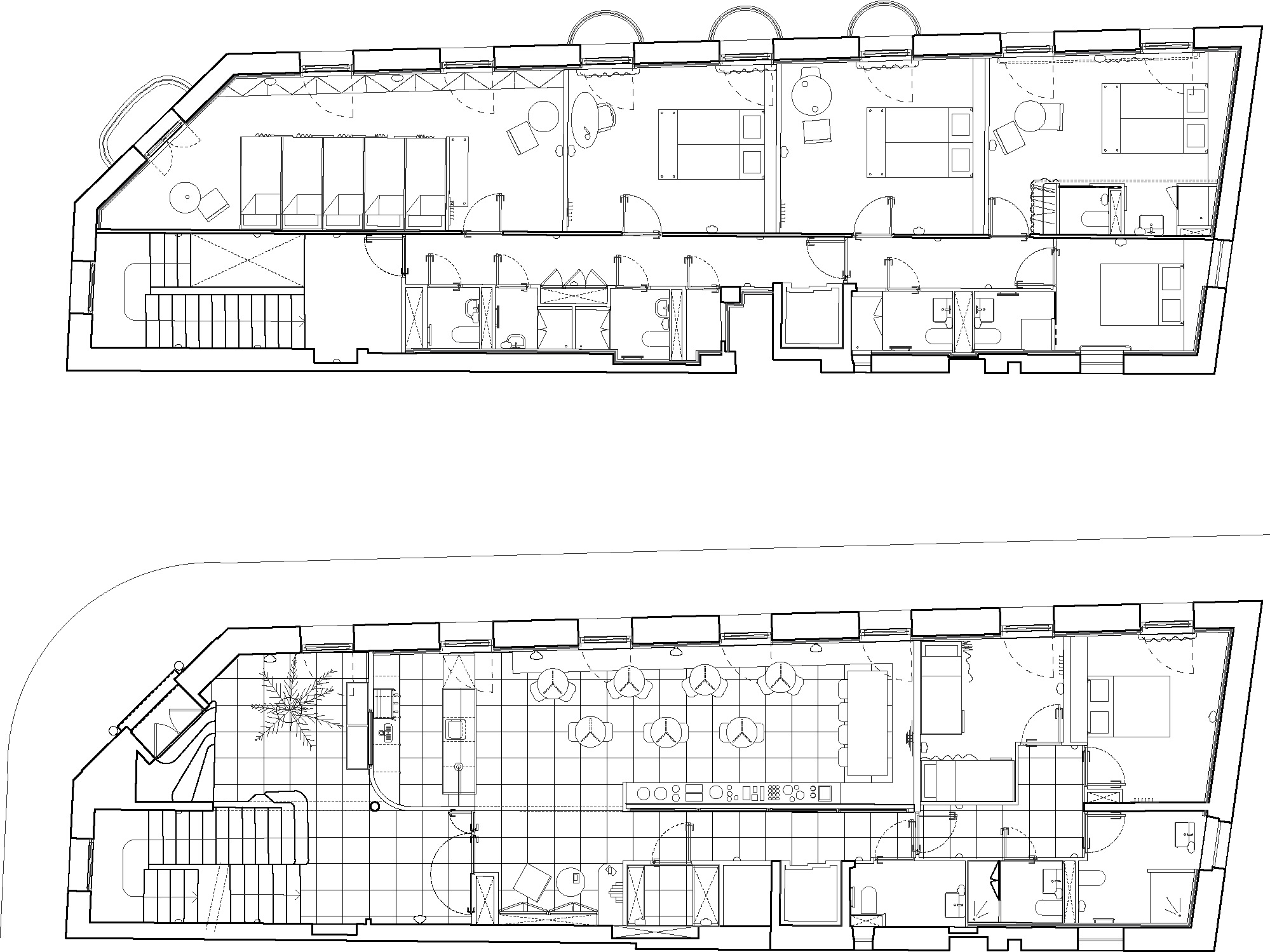
Programme : Transformation d’un hotel en hostel de 81 lits avec un bar-restaurant
Maîtrise d’ouvrage : RBSH
AMO : Charlotte Bollard
Equipe : Us&co (économie de la construction), le BE (BET TCE)
Mission : Conception et suivi de conformité architecturale
Surface : 650 m² SPD
Calendrier : Livré
Label : Bâtiment durable Méditerranéen (BDM)
Photos : Sabine Serrad
Nice, France
Programme : Transformation d’un hotel en hostel de 81 lits avec un bar-restaurant
Maîtrise d’ouvrage : RBSH
AMO : Charlotte Bollard
Equipe : Us&co (économie de la construction), le BE (BET TCE)
Mission : Conception et suivi de conformité architecturale
Surface : 650 m² SPD
Calendrier : Livré
Label : Bâtiment durable Méditerranéen (BDM)
Photos : Sabine Serrad













